Napisz do nas

Jesteś zainteresowany tym lokalem?

Potrzebujesz parkingu?

Zobacz dostępne miejsca:

Sprawdź parking

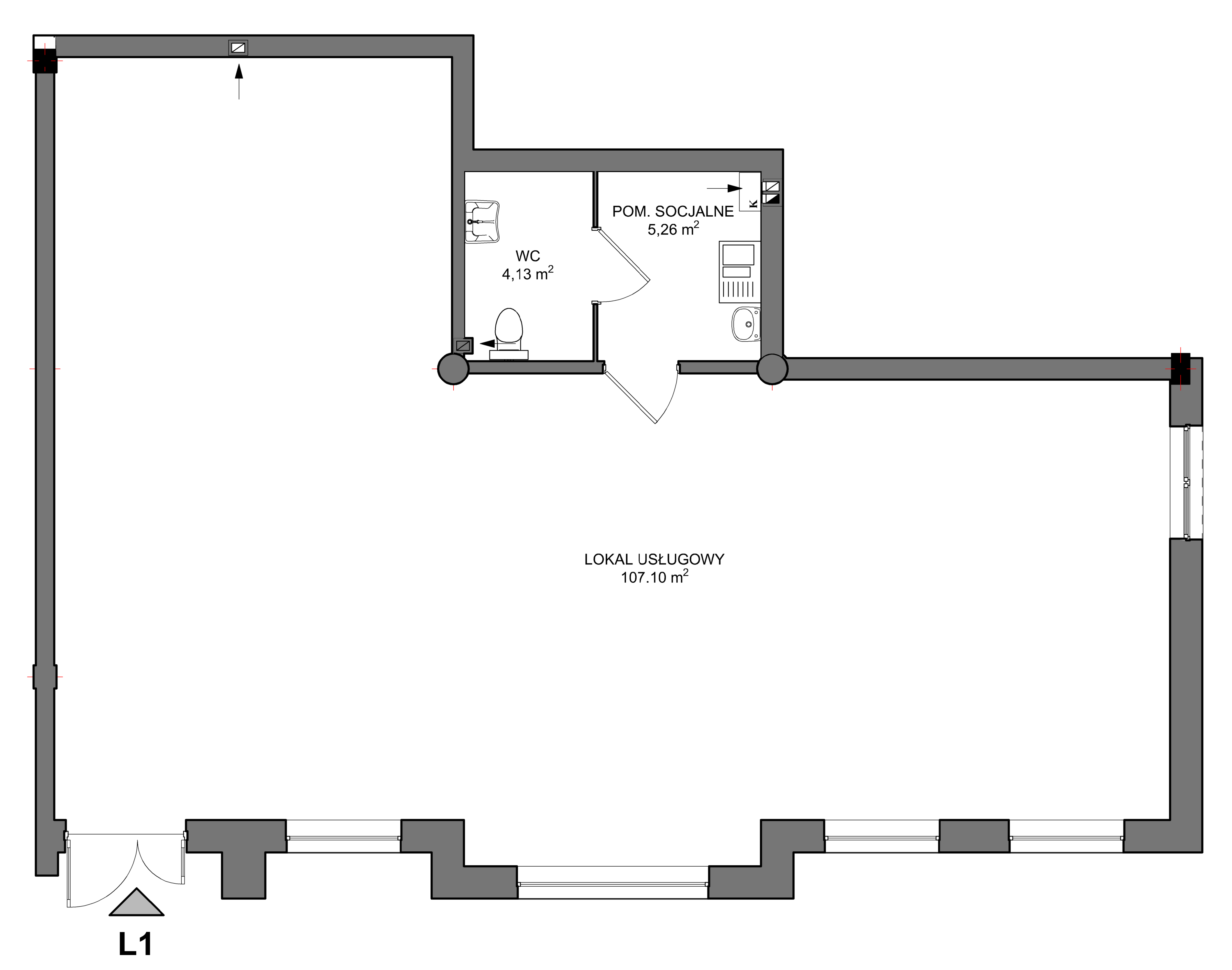
Wizualizacja przestrzeni lokalu usługowego:

Inwestycja „Kościuszki” oferuje przestronny lokal usługowy zlokalizowany na parterze budynku B,

o łącznej powierzchni 116,49 m².

 

Główną część stanowi otwarta przestrzeń o powierzchni 107,10 m², dająca szerokie możliwości aranżacyjne i dopasowania do indywidualnych potrzeb. Lokal został uzupełniony o zaplecze socjalne oraz toaletę.

 

Bezpośrednie wejście od ulicy Kościuszki oraz duże witryny zapewniają doskonałą widoczność

i ekspozycję. Lokal jest przystosowany do potrzeb osób z niepełnosprawnościami oraz wyposażony

w indywidualne ogrzewanie gazowe.

 

107.10 m²

5.26 m²

4.13 m²

116.49 m²

Powierzchnia użytkowa lokalu:

- Lokal usługowy

- Pomieszczenie socjalne

- WC

Łącznie powierzchnia użytkowa

Lokalizacja budynku

Elewacja tylna od strony parkingu

Elewacja frontowa od strony ulicy Kościuszki

ul. Kościuszki 23

Ostrołęka 07-410

Okna:

Północny wschód

Południowy wschód

UWAGA:

 

1. Przedstawiona na rzucie aranżacja ma charakter przykładowy, a umeblowanie, sprzęty RTV/AGD i wykończenie nie stanowią wyposażenia nabywanego lokalu.

 

2. Wymiary pomieszczeń, lokalizacja instalacji oraz powierzchnia użytkowa lokalu zostały określone na podstawie inwentaryzacji powykonawczej (pomiaru z natury) sporządzonej zgodnie z normą PN-ISO 9836:2022-07 po zakończeniu prac budowlanych. Podane w ofercie wymiary i powierzchnie są stanem faktycznym lokalu w świetle wyprawionych ścian (z uwzględnieniem tynków).

 

3. Powierzchnia użytkowa lokalu jest określona na podstawie Rozporządzenia Ministra Rozwoju z dn. 11 września 2020 r. w sprawie szczegółowego zakresu i formy projektu budowlanego (Dz.U z 2020 r. poz 1609 z późn. zm.) oraz zgodnie z zasadami zawartymi polskiej norm PN-ISO 9836:2022-07. Powierzchnia użytkowa lokalu jest obliczana w metrach kwadratowych z dokładnością do dwóch miejsc po przecinku, dla wymiarów lokalu w stanie wykończonym na poziomie podłogi, nie licząc listew przypodłogowych, progów itp. Do powierzchni użytkowej lokalu wlicza się powierzchnię pod elementami nadającymi się do demontażu (rury, kanały), natomiast nie są wliczane powierzchnie otworów na drzwi i okna oraz powierzchnie pod ścianami działowymi.

BUDYNEK B

PARTER

LOKAL USŁUGOWY L1 - 116.49 m²

Logo Kościuszki - nowa inwestycja mieszkaniowa w Ostrołęce

ul. Kościuszki 23

07-410 Ostrołęka

nieruchomosci@energas.pl

Logo Kościuszki - nowa inwestycja mieszkaniowa w Ostrołęce

Kontakt

Strona główna

Menu

Kontakt

Adres