Napisz do nas

Jesteś zainteresowany tym mieszkaniem?

Potrzebujesz parkingu?

Zobacz dostępne miejsca:

Sprawdź parking

REZERWACJA

Lokalizacja budynku

Elewacja tylna od strony parkingu

Elewacja frontowa od strony ulicy Kościuszki

 

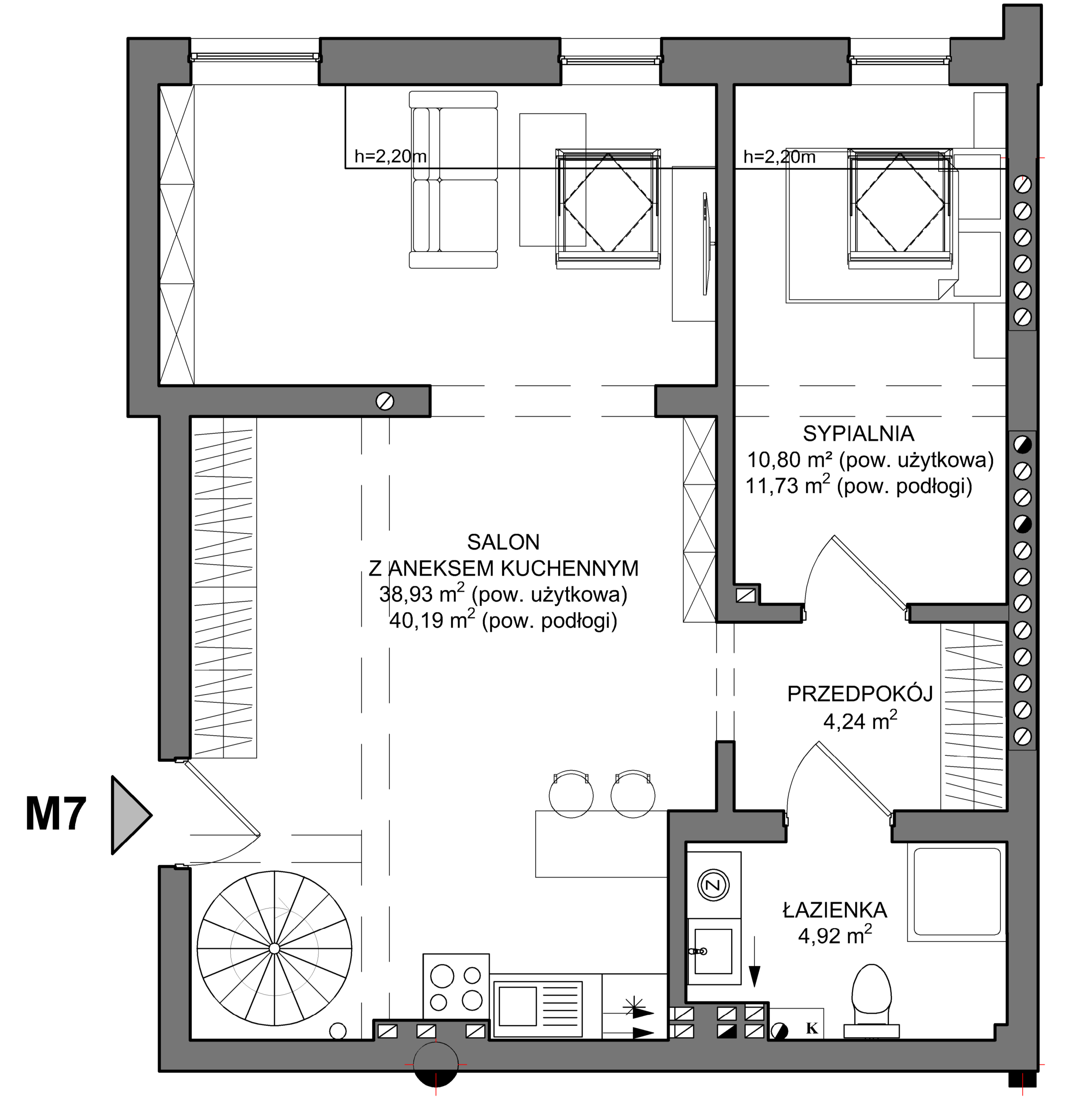
38.93 m²

 

10.80 m²

 

4.92 m²

4.24 m²

58.89 m²

61.08 m²

Powierzchnia użytkowa mieszkania:

- Salon z aneksem kuchennym (ze skosem)

  powierzchnia podłogi w salonie z aneksem 40.19 m²

- Sypialnia (ze skosem)

  powierzchnia podłogi w sypialni 11.73 m²

- Łazienka

- Przedpokój

Łącznie powierzchnia użytkowa

Łącznie powierzchnia podłogi

Okna:

Północny zachód

Przykładowa aranżacja mieszkania:

UWAGA:

 

1. Przedstawiona na rzucie aranżacja ma charakter przykładowy, a umeblowanie, sprzęty RTV/AGD i wykończenie nie stanowią wyposażenia nabywanego lokalu.

 

2. Wymiary pomieszczeń, lokalizacja instalacji oraz powierzchnia użytkowa lokalu zostały określone na podstawie inwentaryzacji powykonawczej (pomiaru z natury) sporządzonej zgodnie z normą PN-ISO 9836:2022-07 po zakończeniu prac budowlanych. Podane w ofercie wymiary i powierzchnie są stanem faktycznym lokalu w świetle wyprawionych ścian (z uwzględnieniem tynków).

 

3. Powierzchnia użytkowa lokalu jest określona na podstawie Rozporządzenia Ministra Rozwoju z dn. 11 września 2020 r. w sprawie szczegółowego zakresu i formy projektu budowlanego (Dz.U z 2020 r. poz 1609 z późn. zm.) oraz zgodnie z zasadami zawartymi polskiej norm PN-ISO 9836:2022-07. Powierzchnia użytkowa lokalu jest obliczana w metrach kwadratowych z dokładnością do dwóch miejsc po przecinku, dla wymiarów lokalu w stanie wykończonym na poziomie podłogi, nie licząc listew przypodłogowych, progów itp. Do powierzchni użytkowej lokalu wlicza się powierzchnię pod elementami nadającymi się do demontażu (rury, kanały), natomiast nie są wliczane powierzchnie otworów na drzwi i okna oraz powierzchnie pod ścianami działowymi.

ul. Kościuszki 23

Ostrołęka 07-410

BUDYNEK A

PIĘTRO II / PODDASZE 

MIESZKANIE M7 - 61.08 m²

Logo Kościuszki - nowa inwestycja mieszkaniowa w Ostrołęce

ul. Kościuszki 23

07-410 Ostrołęka

nieruchomosci@energas.pl

Logo Kościuszki - nowa inwestycja mieszkaniowa w Ostrołęce

Kontakt

Strona główna

Menu

Kontakt

Adres